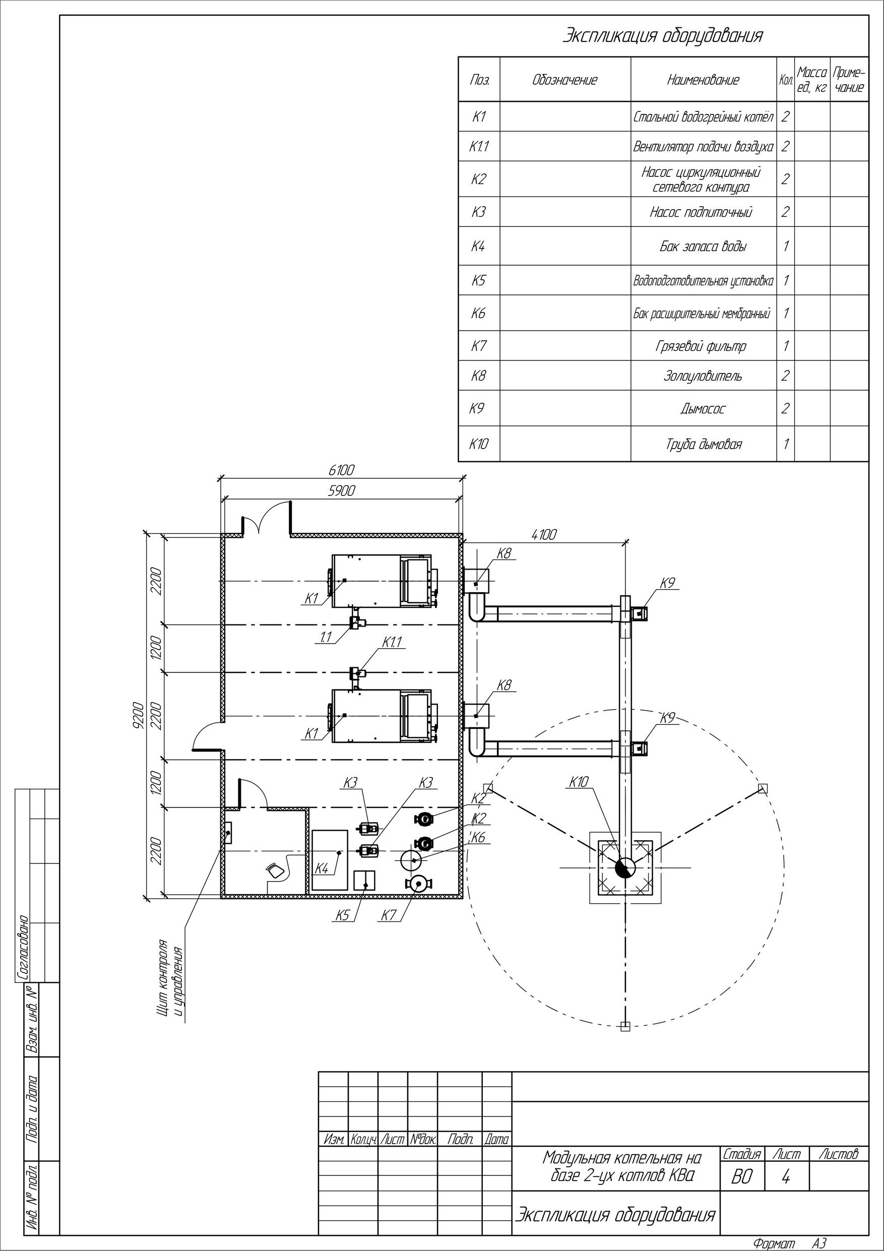
Особенности модульной котельной на газе мощностью 800 кВт
Конструктивно модульная котельная на газе мощностью 800 кВт являются автономным блоком. Снаружи оборудование защищено стенками из профиля с внутренним утеплением. Котельная имеет полноценную высокопроизводительную вентиляцию, которая управляется автоматикой. Внутри располагается водогрейное устройство. Котельное оборудование подключается к основным коммуникациям, которые соединяются с потребителями. На практике модульные системы отличаются высоким КПД. Широкое разнообразие нагревательного оборудования и компактность являются главными преимуществами котельных.
Модульные блоки способны обеспечить эффективную подачу теплоносителя сразу для нескольких домов или предприятий. Технология позволяет обустроить отопление в сжатые сроки и с минимальными затратами. При этом подача тепла будет осуществляться без каких-либо технических проблем. Встроенная автоматика не требует присутствия операторов. В случае возникновения аварийной ситуации датчики передают сигнал диспетчеру, который принимает все необходимые решения.
Требования к монтажу модульной котельной на газе мощностью 800 кВт
Монтаж модульной котельной на газе мощностью 800 кВт осуществляется с учетом требований безопасности. Предварительно необходимо подготовить место для установки. Специалисты оценивают возможность выхода и подключения ключевых коммуникаций. Также рассчитывается рациональность монтажных работ в конкретном месте. Котельные определенной мощности монтируются на ровную и жесткую поверхность. В некоторых случаях в твердое основание закладываются специальные детали, которые нужны для крепления модуля.
После установки блока осуществляется настройка автоматики и подключение коммуникаций. Специалисты монтируют запорную арматуру и подбирают оптимальный режим работы. Также выполняется тестирование всех рабочих систем. Модульная котельная на газе мощностью 800 кВт поставляется на объект уже в собранном виде. Поэтому для монтажа требуется минимум времени.


